Notice of Application and Public Meeting: POPA 2026-0001 and RZ 2026-0003
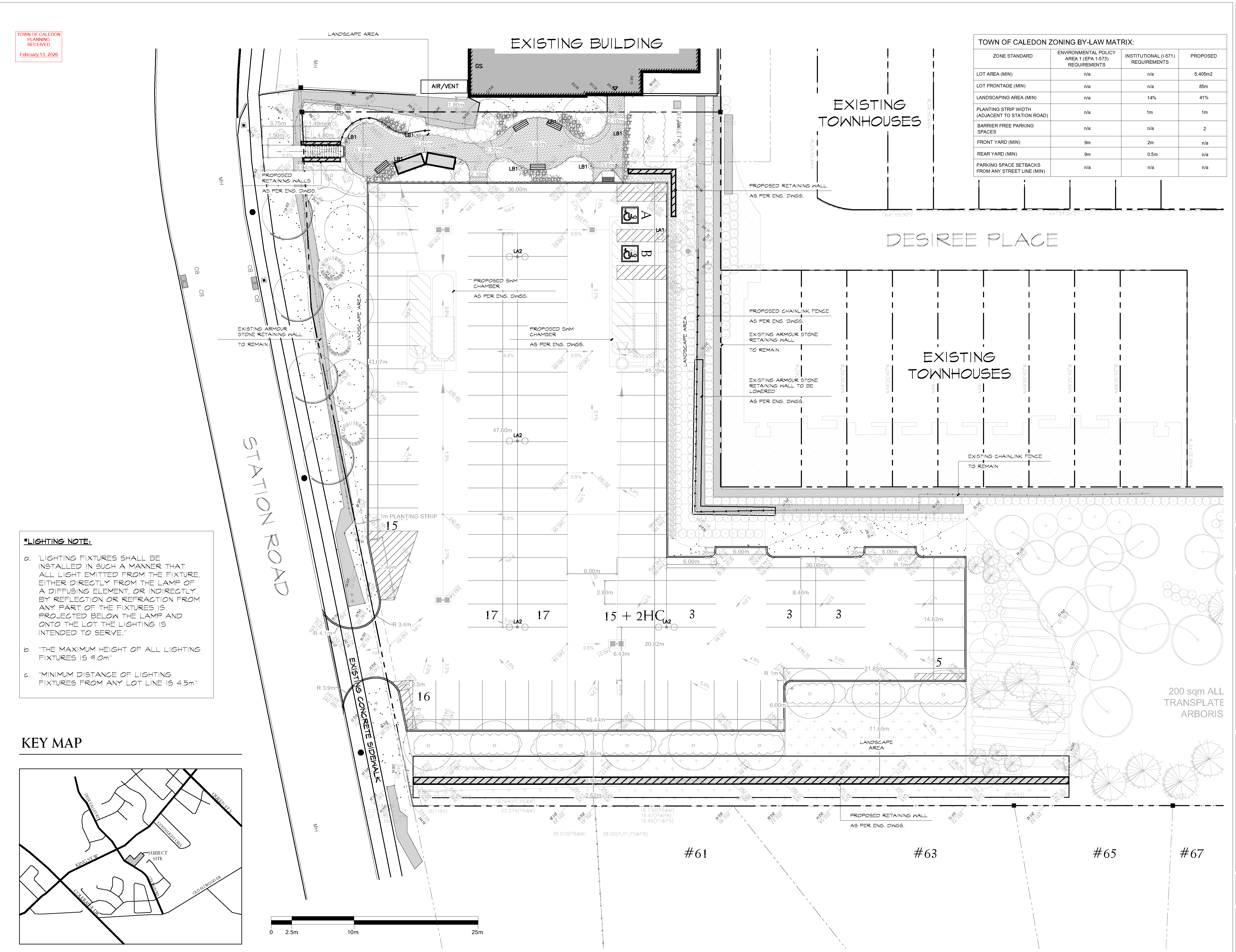
***The illustration is a conceptual plan for information purposes and it is subject to change. The application is currently under review by the Town of Caledon.
FILE NUMBER: POPA 2026-0001 and RZ 2026-0003
This is to inform you that the Town of Caledon has received applications for an Official Plan Amendment application and Zoning By-law Amendment. A statutory Public Meeting will be held to provide those interested an opportunity to make representation with respect to the proposed Official Plan Amendment and Zoning By-law Amendment applications. Your input and insight will inform and shape plans that meet the needs of our community.
Please be advised that the Town of Caledon is offering a Hybrid Committee and Council Meeting model with options for you to engage with Council, including in-person or virtual opportunities.
Meeting Date: May 5, 2026
Public Meeting Start Time: 7:00 pm
Location: Council Chambers, 6311 Old Church Road, Caledon East
How To Participate
| Attend In-Person |
| Register to delegate in-person and speak to an item listed on the agenda or sit in the gallery to watch the meeting. |
| Submit Written Comments |
| Submit written comments regarding the proposed application by completing the Participation Request Form, available at http://www.caledon.ca/speak-at-council. |
| Virtually |
| Participate via phone or Zoom upon request. For more information, please visit contact Agenda@caledon.ca. Please note that there are deadlines to request participation at the Public Meeting. |
You can also provide input by:
- Submitting written correspondence to agenda@caledon.ca and planning@caledon.ca. Please note that written comments will form part of the public record.
- Contacting Planning staff or the Lead Planner during office hours by phone or email (See contact information below).
- Booking an appointment to visit Town Hall to speak with Planning staff. Visit caledon.ca/development for more information.
Applicant and Location
Applicant: Weston Consulting on behalf of the owner Raymond Nicolini
Location: 14 Station Road
Block 3, Plan 43M-2065
Proposed Changes
The applicant has submitted applications to amend the Official Plan and Zoning By-law to construct a surface parking lot comprised of 96 parking spaces on a portion of the property that will provide additional parking for residents, visitors, and employees of the existing retirement residence on the adjacent lot to the north. The remainder of the property will remain in its naturalized state.
Lead Planner
Sagar Babbar
Community Planner, Planning Services and Zoning
Planning and Development Department
905-584-2272 ext. 4041
sagar.babbar@caledon.ca
Additional Information
For more information about this matter, including appeal rights, a copy of the proposed Official Plan Amendment and Zoning By-law Amendment and for supporting material, please visit development application webpage or contact the Lead Planner at Town Hall from Monday to Friday, 8:30 a.m. to 4:30 p.m.
| Appeal Procedure |
|
If a person or public body would otherwise have an ability to appeal the decision of the Town of Caledon to the Ontario Land Tribunal but the person or public body does not make oral submissions at a public meeting or make written submissions to the Town of Caledon before the proposed official plan amendment/by-law is adopted/passed, the person or public body is not entitled to appeal the decision. If a person or public body does not make oral submissions at a public meeting, or make written submissions to the Town of Caledon before the proposed official plan amendment/by-law is adopted/passed, the person or public body may not be added as a party to the hearing of an appeal before the Ontario Land Tribunal unless, in the opinion of the Tribunal, there are reasonable grounds to do so. |
| How To Stay Informed |
| If you wish to be notified of the decision of the Town of Caledon on the proposed Official Plan Amendment and Zoning By-law Amendment, you must make a written request to the Clerk of the Town of Caledon, 6311 Old Church Road, Caledon, Ontario L7C 1J6. |
| Accessibility |
| If you require an accessibility accommodation to attend or participate in this Public Meeting, or to access any materials related to this item in an alternate format please contact Records and Information Services by phone at 905-584-2272 x.2366 or via email at accessibility@caledon.ca. Requests should be submitted at least 10 days before the Public Meeting. |
Multi-Tenant Landowners: Please post this notice in a visible location to all residents of the land.
Notice Date: April 9, 2026
