Notice of Public Meeting: RZ 2025-0009

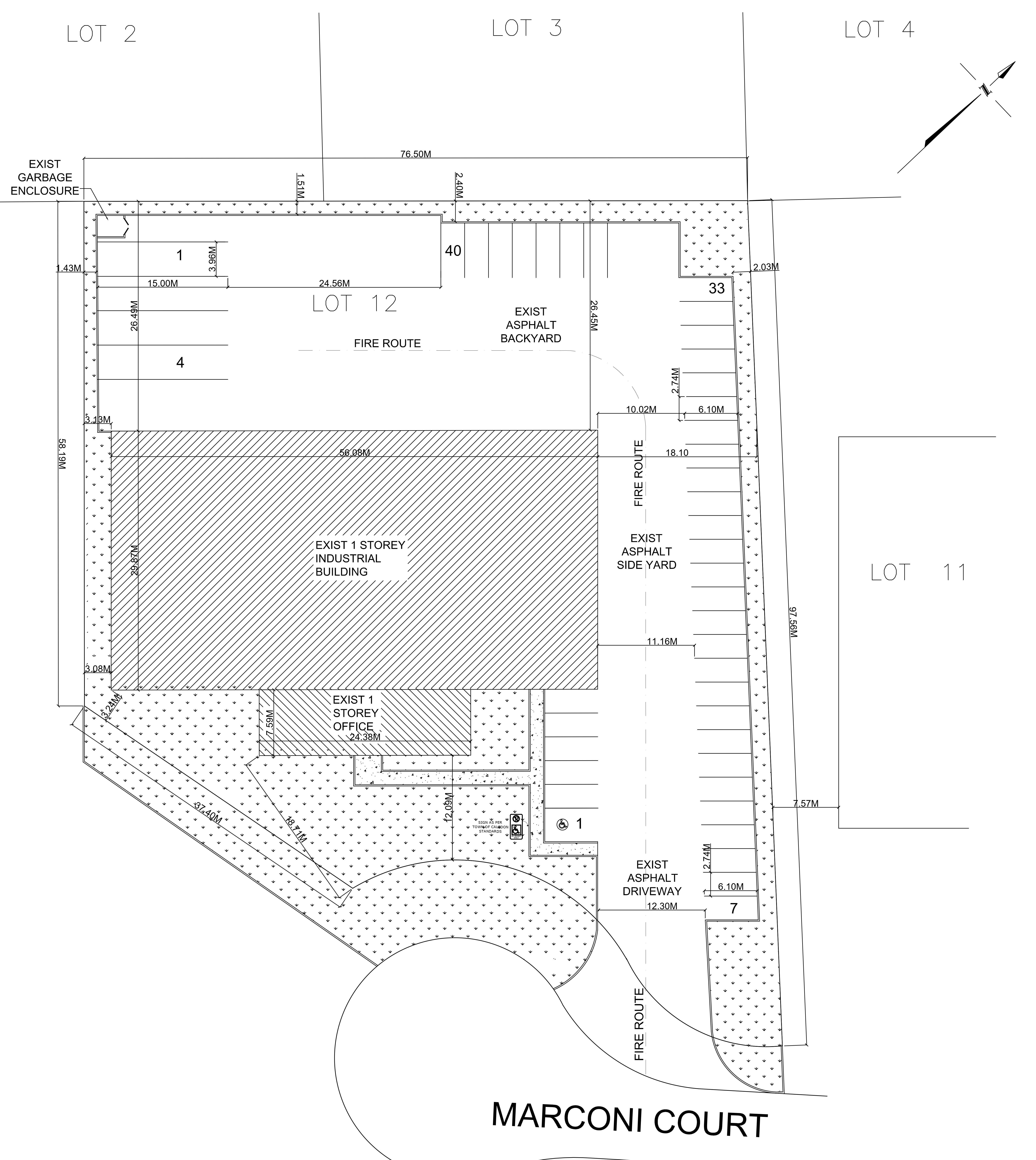
***The illustration is a conceptual plan for information purposes only and is subject to change. The application is currently under review by the Town of Caledon.
A Statutory Public Meeting will be held to provide those interested an opportunity to make representation with respect to the proposed Zoning By-law Amendment. Your input and insight will inform and shape plans that meet the needs of our community.
Please be advised that the Town of Caledon is offering a Hybrid Committee and Council Meeting model with options for you to engage with Council, including in-person or virtual opportunities.
- Meeting Date: October 21, 2025
- Public Meeting Start Time: 7:00 p.m.
- Location: Council Chambers, 6311 Old Church Road, Caledon East
How to Participate
Attend In-Person |
Members of the public may register to delegate in-person and speak to an item listed on the agenda or sit in the gallery to watch the meeting. |
Submit Written Comments |
Members of the public may submit written comments regarding the proposed application by completing the Participation Request Form, available at http://www.caledon.ca/speak-at-council |
Virtually |
Members of the public are welcome to participate via phone or WebEx Meeting upon request. For more information, please visit http://www.caledon.ca/notice or contact the Planning Department. Please note that there are deadlines to request participation at the Public Meeting. |
You can also provide input by:
- Submitting written correspondence to agenda@caledon.ca and planning@caledon.ca for consideration during the Public Meeting. Please note that written comments will form part of the public record.
- Contacting Planning staff or the Lead Planner during office hours by phone or email (See contact information below).
- Booking an appointment to visit Town Hall to speak with Planning staff. Visit caledon.ca/development for more information.
Applicant and Location
Applicant: Recon Consulting (Reza Sekhavati) on behalf of Elite Trucking Repair
Location: 8 Marconi Court
West of Simpson Road and South of Healey Road
PLAN M418 LOT 12
Ward 5
Proposed Changes
The purpose of the Zoning By-law Amendment application is to rezone the lands from Service Industrial (MS) to a site-specific Service Industrial (MS-XX) to permit a Tractor Trailer Repair Facility, with accessory trailer parking. The proposal includes an existing industrial building, the addition of 5 truck doors to the existing building, 40 surface parking spaces and 4 Tractor Trailer parking spaces.
Lead Planner
Sagar Babbar, M.A
Community Planner, Development and Design
Planning and Development Department
905-584-2272 ext. 4041
sagar.babbar@caledon.ca
Additional Information
For more information about this matter, including appeal rights, a copy of the proposed Zoning By-law Amendment or a copy of supporting materials, please visit www.caledon.ca/notices or contact the Lead Planner at Town Hall from Monday to Friday, 8:30 a.m. to 4:30 p.m.
Appeal Procedure |
If a person or public body would otherwise have an ability to appeal the decision of the Town of Caledon to the Ontario Land Tribunal but the person or public body does not make oral submissions at a public meeting or make written submissions to the Town of Caledon before the by-law is passed, the person or public body is not entitled to appeal the decision. If a person or public body does not make oral submissions at a public meeting or make written submissions to the Town of Caledon before the by-law is passed, the person or public body may not be added as a party to the hearing of an appeal before the Ontario Land Tribunal unless, in the opinion of the Tribunal, there are reasonable grounds to do so. |
How To Stay Informed |
If you wish to be notified of the decision of the Town of Caledon regarding the proposed Zoning By-law Amendment, you must make a written request to the Clerk of the Town of Caledon, 6311 Old Church Road, Caledon, Ontario L7C 1J6. |
Accessibility |
If you require an accessibility accommodation to attend or participate in this Public Meeting, or to access any materials related to this item in an alternate format please contact Records and Information Services by phone at 905-584-2272 x.2366 or via email at accessibility@caledon.ca. Requests should be submitted at least 10 days before the Public Meeting. |
Multi-Tenant Landowners: Please post this notice in a visible location to all residents of the land.
Notice Date: September 25, 2025